根据合肥市相城区漕湖菜市场项目招商工作要求,现就本市场商位招商公告如下:
一、项目信息
漕湖菜市场项目位于合肥市相城区漕湖街道黄畦路3号,是由合肥市相城万家邻里市场管理有限公司进行招商管理。本次招商范围为漕湖菜市场二楼区域,面积约2000㎡。
二、招商业态范围
菜市场配套业态、社区配套商业、便民服务业态等。
三、招商选位流程
1.提交报名材料
本招商公告发布时间为2023年4月14日至2023年4月28日。意向商户在公告发布期间向我司提交相关材料(材料清单详见附件),材料提交地点为漕湖菜市场管理办公市,(接收工作于每日早9点至晚17点进行,联系电话15851455586)。
2.资格审核
我司将于公告结束之日起5日内,将意向商户提交的材料进行审核评审,根据市场招商需求筛选出符合条件的意向商户。
3.评审通过:
资格审核结果将于2023年5月4日前进行公示,通过资格审核的意向商户,我司将以电话或短信等形式通知其在指定时间内缴纳选位保证金后,意向商户获得选位资格。
4.竞租选位:
我司将组织获得选位资格的意向商户通过竞价或商业谈判的形式参加选位。
5.签约交款:
选位成功的意向商户应在指定时间内与我司签约,缴纳租金。对于没有选位成功的意向商户,我司将统一退还选位保证金。
四、招商要求
1.商户对所经营业态需有成熟的经营经验,有可视经营成果;
2.商户递交的报名材料,需包括经营业态在该区域的分析材料,如客群分析、行业分析、经营预测等;
3.商户递交的报名材料,需包括经营方案,经营风险预防方案,主营业务与菜场业态的配套经营方案,为周边老百姓提供的增值服务方案等。
合肥市相城万家邻里市场管理有限公司
2023年4月13日
附件:

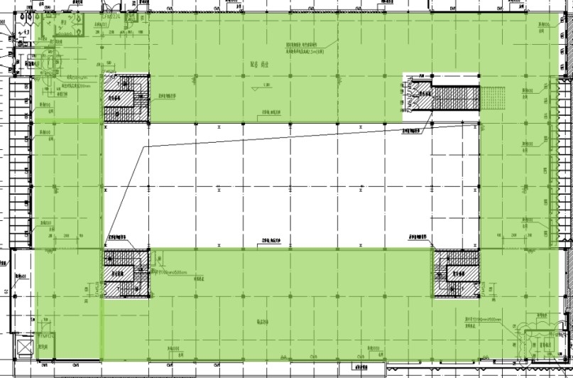
菜市场二楼平面图
(阴影部分为招商区域)
门徒娱乐官方二维码
推荐使用1024*768或以上分辨率,并使用IE9.0或以上版本浏览器。网站支持